Chơi Sơ đồ tầng AR | Đo lường phòng trên PC cùng NoxPlayer
Chi tiết
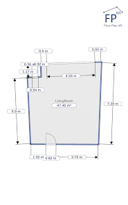
Với Sơ đồ tầng AR, bạn có thể vẽ, tính toán và báo cáo hình học của phòng.
Vẽ tranh
Với công nghệ tiên tiến thực tế tăng cường, bạn có thể nhanh chóng và dễ dàng ghi lại các hình học trong phòng.
Tính toán
Sơ đồ tầng AR tự động tính toán chiều dài, diện tích và thể tích của hình dạng phòng của bạn.
Báo cáo
Báo cáo hoàn chỉnh được tạo tự động cho bạn, bạn có thể xuất báo cáo này dưới dạng tệp pdf để sử dụng cho tài liệu hoặc khách hàng của mình.
ARCore từ google được sử dụng để thực hiện tạo hình học tự động với sự hỗ trợ của con quay hồi chuyển và thông tin độ sâu từ máy ảnh. Phương pháp đo này đã rất chính xác và không ngừng được phát triển thêm. Tuy nhiên, điều này còn phụ thuộc nhiều vào hiệu suất của thiết bị đầu cuối, điều kiện ánh sáng và trải nghiệm của người dùng. Các giá trị đo thu được từ quy trình này cũng cần được kiểm tra bằng các thiết bị đo thông thường. Sơ đồ tầng AR được thiết kế để giúp bạn nhanh chóng tạo các bản phác thảo 2D và 3D. Bằng cách sử dụng Sơ đồ tầng AR, người dùng đồng ý rằng không thể đưa ra khiếu nại nào chống lại nhà phát triển do lỗi đo lường, sự không chính xác hoặc lỗi vận hành.
Thiết bị của bạn có tương thích không?
Nếu thiết bị của bạn có con quay hồi chuyển và tương thích với ARCore thì có!
Nếu bạn có thắc mắc hoặc cần trợ giúp, vui lòng gửi email đến địa chỉ email được cung cấp.
Vẽ tranh
Với công nghệ tiên tiến thực tế tăng cường, bạn có thể nhanh chóng và dễ dàng ghi lại các hình học trong phòng.
Tính toán
Sơ đồ tầng AR tự động tính toán chiều dài, diện tích và thể tích của hình dạng phòng của bạn.
Báo cáo
Báo cáo hoàn chỉnh được tạo tự động cho bạn, bạn có thể xuất báo cáo này dưới dạng tệp pdf để sử dụng cho tài liệu hoặc khách hàng của mình.
ARCore từ google được sử dụng để thực hiện tạo hình học tự động với sự hỗ trợ của con quay hồi chuyển và thông tin độ sâu từ máy ảnh. Phương pháp đo này đã rất chính xác và không ngừng được phát triển thêm. Tuy nhiên, điều này còn phụ thuộc nhiều vào hiệu suất của thiết bị đầu cuối, điều kiện ánh sáng và trải nghiệm của người dùng. Các giá trị đo thu được từ quy trình này cũng cần được kiểm tra bằng các thiết bị đo thông thường. Sơ đồ tầng AR được thiết kế để giúp bạn nhanh chóng tạo các bản phác thảo 2D và 3D. Bằng cách sử dụng Sơ đồ tầng AR, người dùng đồng ý rằng không thể đưa ra khiếu nại nào chống lại nhà phát triển do lỗi đo lường, sự không chính xác hoặc lỗi vận hành.
Thiết bị của bạn có tương thích không?
Nếu thiết bị của bạn có con quay hồi chuyển và tương thích với ARCore thì có!
Nếu bạn có thắc mắc hoặc cần trợ giúp, vui lòng gửi email đến địa chỉ email được cung cấp.

Giả lập NoxPlayer đem đến trải nghiệm chơi game tuyệt vời nhất cho bạn
Hướng dẫn chơi Sơ đồ tầng AR | Đo lường phòng trên PC cùng Giả lập NoxPlayer

1Tải NoxPlayer trên máy tính của bạn

2Chạy tệp cài đặt và hoàn tất cài đặt

3Tìm kiếm Sơ đồ tầng AR | Đo lường phòng trên NoxPlayer

4Tải game từ Google Play

5Nhấn vào biểu tượng game để khởi động game

6Chơi Sơ đồ tầng AR | Đo lường phòng trên máy tính mượt mà- ổn định với NoxPlayer
Phương pháp đơn giản
Cách 1: Nhấn vào "Tải về bản PC" để đồng thời tải về Giả lập NoxPlayer và File APK. Sau khi quá trình cài đặt hoàn tất, bạn hãy khởi động giả lập và bắt đầu những trải nghiệm thú vị.
Cách 2: Nếu máy tính của bạn đã cài đặt sẵn Giả lập NoxPlayer, hãy nhấn "Tải APK", sau khi quá trình tải về hoàn tất, kéo thả File APK vào giả lập NoxPlayer, hệ thống sẽ tự động giải nén và cài đặt.
Video đặc sắc của Sơ đồ tầng AR | Đo lường phòng
Chơi Sơ đồ tầng AR | Đo lường phòng, bạn vẫn đang nhìn chằm chằm vào màn hình điện thoại ư? Giả lập NoxPlayer sẽ giúp bạn trở thành một game thủ chuyên nghiệp để chơi các tựa game bạn yêu thích trên máy tính, điều khiển trò chơi thông qua bàn phím, chuột máy tính và tay cầm, mọi thao tác sẽ trở nên dễ dàng và linh hoạt hơn bao giờ hết, giúp cho bạn tăng cấp, leo rank nhanh hơn. Tải và chơi Sơ đồ tầng AR | Đo lường phòng một cách ổn định và mượt mà nhất trên máy tính cùng giả lập NoxPlayer. Chơi game mobile trên NoxPlayer sẽ giúp bạn tránh được những hao mòn và tổn hại cho điện thoại, không còn phải sợ các cuộc gọi đến bị cản trở khi chơi game. Bản mới nhất của NoxPlayer hỗ trợ tốt cho Android 7 và tương thích một cách hoàn hảo với hơn 99% các tựa game mobile hiện hành. Nox chính là vũ khí tối ưu nhất giúp bạn chơi tốt các trò chơi hay ứng dụng mobile trên máy tính. Chúng tôi hỗ trợ cài đặt bàn phím điều khiển cho từng game một cách phù hợp nhất, để bạn có thể trải nghiệm Sơ đồ tầng AR | Đo lường phòng một cách chân thực nhất với các thao tác như chơi trên mobile.
NoxPlayer hỗ trợ tính năng Trình đa nhiệm Multidriver, có thể khởi tạo và chơi nhiều cửa sổ giả lập và acc cùng lúc, bạn có thể đồng thời chơi game/ứng dụng yêu thích trên các cửa sổ được tạo bởi NoxPlayer. Kỹ thuật ảo hóa độc quyền từ NoxPlayer tương thích hoàn hảo với máy tính AMD và Intel, giúp cho máy tính vận hành ổn định và mượt mà. Giả lập NoxPlayer sẽ biến bạn thành các game thủ hạng nặng, còn chần chờ gì nữa, hãy tải ngay NoxPlayer về máy tính và trải nghiệm nhé!
NoxPlayer hỗ trợ tính năng Trình đa nhiệm Multidriver, có thể khởi tạo và chơi nhiều cửa sổ giả lập và acc cùng lúc, bạn có thể đồng thời chơi game/ứng dụng yêu thích trên các cửa sổ được tạo bởi NoxPlayer. Kỹ thuật ảo hóa độc quyền từ NoxPlayer tương thích hoàn hảo với máy tính AMD và Intel, giúp cho máy tính vận hành ổn định và mượt mà. Giả lập NoxPlayer sẽ biến bạn thành các game thủ hạng nặng, còn chần chờ gì nữa, hãy tải ngay NoxPlayer về máy tính và trải nghiệm nhé!
Game Hot
NoxPlayer is designed for Windows and MAC OS, please visit this website via computer browser to download NoxPlayer.

